Vorige | Volgende
Verkocht

Zuidereinde 27 's-Graveland

Deze woning is verkocht

Neem contact met ons op

035-5824281

info@vuister.com

Omschrijving

Op een werkelijk unieke en centraal gelegen locatie in het Gooi ligt deze half-vrijstaande woning op de voormalige buitenplaats Groenlust. Deze rustige en vooral groene locatie ligt midden in de randstad en toch niet afgelegen. Dit rijksmonument ligt verder aan een doodlopend landweggetje, een eigen weg, die slechts toegankelijk is voor aanwonenden. Vanuit de woning heeft u zowel aan de voor- als achterzijde vrij uitzicht over het groen, waardoor u ’s ochtends de zon ziet opkomen en hem ’s avonds weer kunt zien ondergaan.

’s-Graveland is zeer centraal gelegen en telt zo’n 1250 inwoners. Voor uw dagelijkse boodschappen treft u op loopafstand het moderne winkelcentrum “De Meenthof” van Kortenhoef met een gevarieerd winkelaanbod en wisselende marktkramen. ’s-Graveland staat als voormalige vestigingsplaats van Natuurmonumenten bekend om haar uitgestrekte natuurgebieden en landgoederen. De woonplaats kent maar liefst 38 gemeentelijke monumenten en 121 rijksmonumenten. Op de voor publiek opengestelde buitenplaatsen Schaep en Burgh, Boekesteyn, Bantam, Spanderswoud, Jagtlust, Hilverbeek en Gooilust kunt u eindeloos wandelen en fietsen. Hilversum bereikt u in 10 fietsminuten. Utrecht, Amsterdam of Amersfoort bereikt u in circa 20-30 autominuten.


Indeling:

Begane grond:
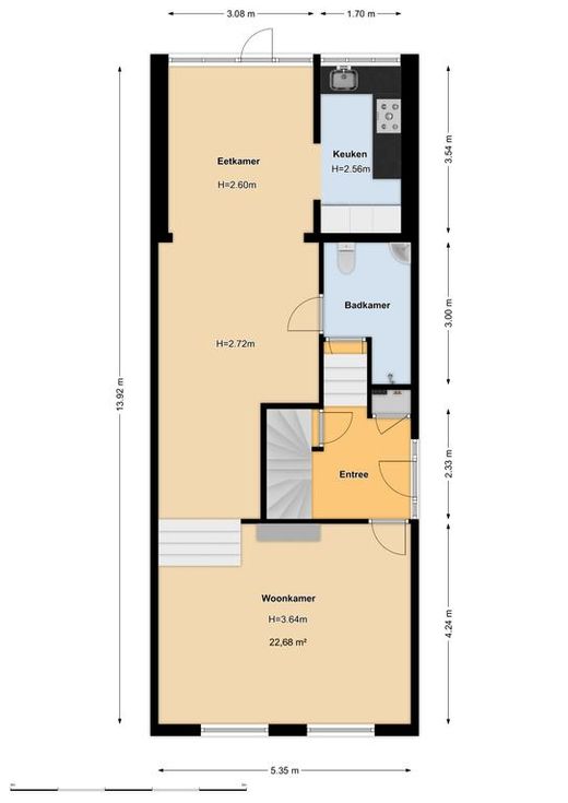
Zij-Entree, hal met natuurstenen vloer, meterkast en trapopgang naar de verdieping, deur naar ruime, stahoge kelder alwaar opstelling was- en droogapparatuur en CV-ketel, bescheiden trapopgang met deur naar eenvoudige badkamer met douchecabine, toilet (wandcloset), wastafelmeubel en designradiator, fraaie sfeervolle zitkamer aan de voorzijde met hoog plafond, parketvloer en originele schouw met gesloten haard, kleine verhoging naar royale, uitgebouwde eetkamer aan de achterzijde van de woning eveneens met parketvloer en met openslaande deuren naar de achtertuin, deur naar de badkamer, bescheiden semi-open keuken aan de achterzijde met tegelvloer en voorzien van een keukenblok in hoekopstelling met apothekerskast en diverse inbouwapparatuur waaronder 5-pits kookplaat, vaatwasser en koelkast.

Verdieping:
Lichte overloop met zijraam en vaste kasten, separaat 2e toilet met fonteintje, ruime slaapkamer aan de voorzijde met vaste kast, grote slaapkamer aan de achterzijde met schuifwandkast, Velux dakraam en raampartij in de achtergevel. Op het toilet na is deze verdieping voorzien van laminaatvloeren.

Tuin:
De voortuin is in de middag en avond lekker zonnig, terwijl het bladerdek van de oude appelboom in de zomer voor een prettige schaduw zorgt. De achtertuin is maar liefs 55 meter lang en gelegen aan de landerijen en bossen van Natuurmonumenten. De tuin biedt u veel privacy en het is een komen en gaan van allerlei dieren. De achtertuin is op het oosten, maar door zijn enorme lengte en vrije ligging kunt u gedurende de gehele dag een plek met zon of juist met schaduw vinden. Aan het eind van de tuin ligt een sloot en een kleine vijver. Vanuit deze sloot kunt u met de kano richting de ’s-Gravelandse vaart en door peddelen naar Hilversum. Eventueel kunt u de kano langs de sluis tillen en dan door naar Loosdrecht.

Groenlust:
In de 17e eeuw ontstond ’s-Graveland als een aaneenschakeling van landgoederen, die tot op heden bijna allemaal nog bestaan. De voormalige buitenplaats Groenlust, waar Zuidereinde 27 een onderdeel van is, is niet meer als zodanig te herkennen. Aanvankelijk stond op de plek waar nu de woningen Zuidereinde 25 en 27 staan, een boerderij waar zeeheld Cornelis Tromp woonde tot zijn huwelijk met buurvrouw Margaretha van Raephorst. Hiermee werd hij eigenaar van de Syllisburg. Deze werd in 1672 door Franse troepen in brand gestoken. Margareta en Cornelis lieten een nieuw buitenhuis bouwen: Trompenburgh. Deze kunt u vanuit de tuin al zien.

Eigen weg:
Zuidereinde 27 ligt aan een Eigen Weg, verboden toegang voor onbevoegden. In verband met de privacy van de omwonenden willen wij u vragen daarom niet zonder afspraak met de makelaar deze weg in te lopen.

Bouwtechnische keuring:
Om u als potentiële koper zoveel mogelijk zekerheid te kunnen bieden hebben wij dit object bouwtechnisch laten keuren door een onafhankelijk keuringsbureau. Bij nadere interesse in dit object verstrekken wij u graag een kopie van het bouwtechnisch rapport.

Bijzonderheden:
- Rustig en toch gunstig gelegen ten opzichte van alle voorzieningen
- Circa 55 meter diepe, vrij gelegen achtertuin op het oosten met veel privacy
- Badkamer op de begane grond en 2 grote slaapkamers op de verdieping
- Verwarming via CV-combiketel (Nefit Ecomline HR uit 1997)
- Voorzien van dakisolatie en dubbele beglazing
- Betreft een Rijksmonument
- Bouwjaar 1880
- Gebruiksoppervlak Wonen 125 m2
- Overige inpandige ruimte (kelder) 34 m2
- Bruto inhoud 584 m3
- Perceeloppervlakte 575 m2

Kenmerken

Overdracht

Aanvaarding
in overleg

Bouw

Soort woning
eengezinswoning
Type woning
halfvrijstaande woning
Soort bouw
bestaande bouw
Bouwjaar
1880
In aanbouw
nee

Details

Voorzieningen
dakraam, natuurlijke ventilatie, rookkanaal, tv kabel
Ligging
aan bosrand, aan rustige weg, aan water, in bosrijke omgeving, landelijk gelegen, open ligging, vrij uitzicht
Permanente bewoning
ja
Daktype
zadeldak
Dakmateriaal
pannen

Bijzonderheden

Bijzonderheden
beschermd stads of dorpsgezicht, gedeeltelijk gestoffeerd, monument

Oppervlakten en inhoud

Woonoppervlakte
125 m²
Oppervlakte overige functies
34 m²
Perceel
575 m²
Inhoud
584 m³

Indeling

Aantal kamers
6
Aantal slaapkamers
2
Aantal etages
3
Aantal badkamers
1
Badkamervoorzieningen
douche, toilet, wastafel, wastafelmeubel
Keuken type
half open keuken, inbouwapparatuur

Isolatie en verwarming

Isolatievormen
dakisolatie, gedeeltelijk dubbel glas
Soort verwarming
cv ketel
Warmwater installatie
cv ketel
Ketel bouwjaar
1997
Ketel type
Nefit Ecomline HR
Ketel gas/olie
gas
Ketel eigendom
eigendom

Kadastrale gegevens

Kadastrale aanduiding
'S-GRAVELAND B 2614
Oppervlakte
575 m²
Eigendomssituatie
volle eigendom

Buitenruimte

Tuintype(n)
achtertuin, voortuin
Hoofdtuin type
achtertuin
Hoofdtuin oppervlakte
303 m²
Hoofdtuin achterom
ja
Ligging hoofdtuin
oost
Totale oppervlakte
303 m²

Garage

Garagesoorten
geen garage

Parkeergelegenheid

Faciliteit
op eigen terrein, openbaar parkeren
Capaciteit parkeren
1

Schuur/berging

Aantal
1
Soort
vrijstaand hout

Omschrijving

Op een werkelijk unieke en centraal gelegen locatie in het Gooi ligt deze half-vrijstaande woning op de voormalige buitenplaats Groenlust. Deze rustige en vooral groene locatie ligt midden in de randstad en toch niet afgelegen. Dit rijksmonument ligt verder aan een doodlopend landweggetje, een eigen weg, die slechts toegankelijk is voor aanwonenden. Vanuit de woning heeft u zowel aan de voor- als achterzijde vrij uitzicht over het groen, waardoor u ’s ochtends de zon ziet opkomen en hem ’s avonds weer kunt zien ondergaan.

’s-Graveland is zeer centraal gelegen en telt zo’n 1250 inwoners. Voor uw dagelijkse boodschappen treft u op loopafstand het moderne winkelcentrum “De Meenthof” van Kortenhoef met een gevarieerd winkelaanbod en wisselende marktkramen. ’s-Graveland staat als voormalige vestigingsplaats van Natuurmonumenten bekend om haar uitgestrekte natuurgebieden en landgoederen. De woonplaats kent maar liefst 38 gemeentelijke monumenten en 121 rijksmonumenten. Op de voor publiek opengestelde buitenplaatsen Schaep en Burgh, Boekesteyn, Bantam, Spanderswoud, Jagtlust, Hilverbeek en Gooilust kunt u eindeloos wandelen en fietsen. Hilversum bereikt u in 10 fietsminuten. Utrecht, Amsterdam of Amersfoort bereikt u in circa 20-30 autominuten.


Indeling:

Begane grond:
Zij-Entree, hal met natuurstenen vloer, meterkast en trapopgang naar de verdieping, deur naar ruime, stahoge kelder alwaar opstelling was- en droogapparatuur en CV-ketel, bescheiden trapopgang met deur naar eenvoudige badkamer met douchecabine, toilet (wandcloset), wastafelmeubel en designradiator, fraaie sfeervolle zitkamer aan de voorzijde met hoog plafond, parketvloer en originele schouw met gesloten haard, kleine verhoging naar royale, uitgebouwde eetkamer aan de achterzijde van de woning eveneens met parketvloer en met openslaande deuren naar de achtertuin, deur naar de badkamer, bescheiden semi-open keuken aan de achterzijde met tegelvloer en voorzien van een keukenblok in hoekopstelling met apothekerskast en diverse inbouwapparatuur waaronder 5-pits kookplaat, vaatwasser en koelkast.

Verdieping:
Lichte overloop met zijraam en vaste kasten, separaat 2e toilet met fonteintje, ruime slaapkamer aan de voorzijde met vaste kast, grote slaapkamer aan de achterzijde met schuifwandkast, Velux dakraam en raampartij in de achtergevel. Op het toilet na is deze verdieping voorzien van laminaatvloeren.

Tuin:
De voortuin is in de middag en avond lekker zonnig, terwijl het bladerdek van de oude appelboom in de zomer voor een prettige schaduw zorgt. De achtertuin is maar liefs 55 meter lang en gelegen aan de landerijen en bossen van Natuurmonumenten. De tuin biedt u veel privacy en het is een komen en gaan van allerlei dieren. De achtertuin is op het oosten, maar door zijn enorme lengte en vrije ligging kunt u gedurende de gehele dag een plek met zon of juist met schaduw vinden. Aan het eind van de tuin ligt een sloot en een kleine vijver. Vanuit deze sloot kunt u met de kano richting de ’s-Gravelandse vaart en door peddelen naar Hilversum. Eventueel kunt u de kano langs de sluis tillen en dan door naar Loosdrecht.

Groenlust:
In de 17e eeuw ontstond ’s-Graveland als een aaneenschakeling van landgoederen, die tot op heden bijna allemaal nog bestaan. De voormalige buitenplaats Groenlust, waar Zuidereinde 27 een onderdeel van is, is niet meer als zodanig te herkennen. Aanvankelijk stond op de plek waar nu de woningen Zuidereinde 25 en 27 staan, een boerderij waar zeeheld Cornelis Tromp woonde tot zijn huwelijk met buurvrouw Margaretha van Raephorst. Hiermee werd hij eigenaar van de Syllisburg. Deze werd in 1672 door Franse troepen in brand gestoken. Margareta en Cornelis lieten een nieuw buitenhuis bouwen: Trompenburgh. Deze kunt u vanuit de tuin al zien.

Eigen weg:
Zuidereinde 27 ligt aan een Eigen Weg, verboden toegang voor onbevoegden. In verband met de privacy van de omwonenden willen wij u vragen daarom niet zonder afspraak met de makelaar deze weg in te lopen.

Bouwtechnische keuring:
Om u als potentiële koper zoveel mogelijk zekerheid te kunnen bieden hebben wij dit object bouwtechnisch laten keuren door een onafhankelijk keuringsbureau. Bij nadere interesse in dit object verstrekken wij u graag een kopie van het bouwtechnisch rapport.

Bijzonderheden:
- Rustig en toch gunstig gelegen ten opzichte van alle voorzieningen
- Circa 55 meter diepe, vrij gelegen achtertuin op het oosten met veel privacy
- Badkamer op de begane grond en 2 grote slaapkamers op de verdieping
- Verwarming via CV-combiketel (Nefit Ecomline HR uit 1997)
- Voorzien van dakisolatie en dubbele beglazing
- Betreft een Rijksmonument
- Bouwjaar 1880
- Gebruiksoppervlak Wonen 125 m2
- Overige inpandige ruimte (kelder) 34 m2
- Bruto inhoud 584 m3
- Perceeloppervlakte 575 m2

Kenmerken

Overdracht

Aanvaarding
in overleg

Bouw

Soort woning
eengezinswoning
Type woning
halfvrijstaande woning
Soort bouw
bestaande bouw
Bouwjaar
1880
In aanbouw
nee

Details

Voorzieningen
dakraam, natuurlijke ventilatie, rookkanaal, tv kabel
Ligging
aan bosrand, aan rustige weg, aan water, in bosrijke omgeving, landelijk gelegen, open ligging, vrij uitzicht
Permanente bewoning
ja
Daktype
zadeldak
Dakmateriaal
pannen

Bijzonderheden

Bijzonderheden
beschermd stads of dorpsgezicht, gedeeltelijk gestoffeerd, monument

Oppervlakten en inhoud

Woonoppervlakte
125 m²
Oppervlakte overige functies
34 m²
Perceel
575 m²
Inhoud
584 m³

Indeling

Aantal kamers
6
Aantal slaapkamers
2
Aantal etages
3
Aantal badkamers
1
Badkamervoorzieningen
douche, toilet, wastafel, wastafelmeubel
Keuken type
half open keuken, inbouwapparatuur

Isolatie en verwarming

Isolatievormen
dakisolatie, gedeeltelijk dubbel glas
Soort verwarming
cv ketel
Warmwater installatie
cv ketel
Ketel bouwjaar
1997
Ketel type
Nefit Ecomline HR
Ketel gas/olie
gas
Ketel eigendom
eigendom

Kadastrale gegevens

Kadastrale aanduiding
'S-GRAVELAND B 2614
Oppervlakte
575 m²
Eigendomssituatie
volle eigendom

Buitenruimte

Tuintype(n)
achtertuin, voortuin
Hoofdtuin type
achtertuin
Hoofdtuin oppervlakte
303 m²
Hoofdtuin achterom
ja
Ligging hoofdtuin
oost
Totale oppervlakte
303 m²

Garage

Garagesoorten
geen garage

Parkeergelegenheid

Faciliteit
op eigen terrein, openbaar parkeren
Capaciteit parkeren
1

Schuur/berging

Aantal
1
Soort
vrijstaand hout

Foto's

Kaart Zuidereinde 27 's-Graveland

naar Zuidereinde 27 's-Graveland
Op 5 minuten loopafstand Op 5 minuten fietsafstand